我公司专业承接西南片区民宿、别墅、自建房设计施工总承包项目。拥有20年团队设计及施工经验,再西南片区有大量成功设计案例。
合作流程:
1.电话沟通预约,互相了解合作内容,提交2000元场地测量费用,公司安排测绘人员去现场测量1:500地形图;
2.按照投资估算提交2%项目设计费,安排建筑,景观,室内装修平面设计图及效果图,项目估算,业主可结合自己喜好免费修改3次。知道业主满意方可进行下一步工作。
3.按照投资估算提交3%项目设计费,安排建筑,结构,景观,室内装饰,给排水,建筑电气专业施工图。
4.签订建筑工程施工合同,业主选定时间开工。
5.项目基础完成,业主签字验收,同时缴纳下一笔工程款。
6.项目主体完成,业主签字验收,同时缴纳下一笔工程款。
7.项目外装修完成,业主签字验收,同时缴纳下一笔工程款。
8.项目室内装饰完成,业主签字验收,同时缴纳下一笔工程款。
9.项目景观施工完成,业主签字验收,同时缴纳尾款。
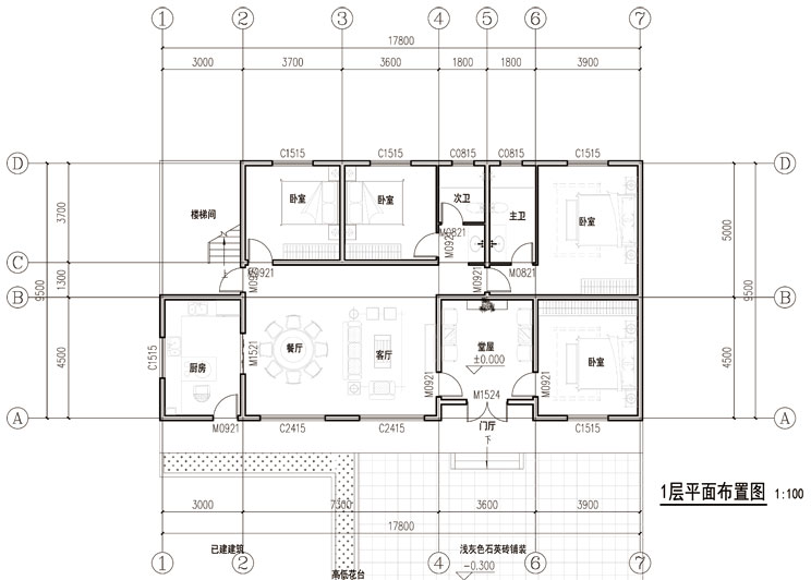
本户型建筑面积130平方米左右,设计包含了建筑,景观,室内装饰等部分内容。项目所在地岳池县。
