上海北京广州深圳武汉天津西安南京杭州成都重庆贵阳三亚昆明遵义丽江万州长沙无锡厦门
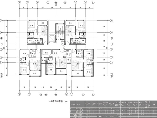
银火建筑规划设计有限公司研究的新度假洋房建筑面积40-70平方米,度假别墅150平方米左右,新型户型鉴赏。以及售楼部设计。